
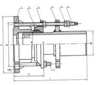
|
序号 |
名称 |
数量 |
材料 |
|
1 |
本体 |
1 |
QT400-15、Q235A、ZG230-450、20 |
|
2 |
密封圈 |
1 |
NBR |
|
3 |
压盖 |
1 |
QT400-15、Q235A、ZG230-450、20 |
|
4 |
限位短管 |
1 |
Q235A、20、16Mn |
|
5 |
螺母 |
4n |
Q235A、20、1Cr18Ni9Ti |
|
6 |
长螺柱 |
n |
Q235A、35、1Cr18Ni9Ti |
|
7 |
螺柱 |
n |
Q235A、35、1Cr18Ni9Ti |
安装数据表: 单位:mm
|
公称通径 |
管子外径Dw |
外形尺寸 |
伸缩量 & |
法兰连接尺寸 |
||||||
|
L |
L1 |
0.6MPa |
1.0MPa |
|||||||
|
D |
D1 |
n-d。 |
D |
D1 |
n-d。 |
|||||
|
65 |
76 |
340 |
105 |
50 |
160 |
130 |
4-¢14 |
185 |
145 |
4-¢18 |
|
80 |
89 |
190 |
150 |
4-¢18 |
200 |
160 |
8-¢18 |
|||
|
100 |
108 |
210 |
170 |
220 |
180 |
|||||
|
114 |
||||||||||
|
125 |
133 |
240 |
200 |
8-¢18 |
250 |
210 |
||||
|
140 |
||||||||||
|
150 |
159 |
265 |
225 |
285 |
240 |
8-¢22 |
||||
|
168 |
||||||||||
|
200 |
219 |
320 |
280 |
340 |
295 |
|||||
|
250 |
273 |
370 |
335 |
12-¢18 |
395 |
350 |
12-¢22 |
|||
|
300 |
325 |
350 |
130 |
65 |
440 |
395 |
12-¢22 |
445 |
400 |
|
|
350 |
377 |
490 |
445 |
505 |
460 |
16-¢22 |
||||
|
400 |
426 |
540 |
495 |
16-¢22 |
565 |
515 |
16-¢26 |
|||
|
450 |
480 |
595 |
550 |
615 |
565 |
20-¢26 |
||||
|
500 |
530 |
645 |
600 |
20-¢22 |
670 |
620 |
||||
|
600 |
630 |
755 |
705 |
20-¢26 |
780 |
725 |
20-¢30 |
|||
|
700 |
720 |
860 |
810 |
24-¢26 |
895 |
840 |
24-¢30 |
|||
|
800 |
820 |
590 |
220 |
130 |
975 |
920 |
24-¢30 |
1015 |
950 |
24-¢33 |
|
900 |
920 |
1075 |
1020 |
1115 |
1015 |
28-¢33 |
||||
|
1000 |
1020 |
1175 |
1120 |
28-¢30 |
1230 |
1160 |
28-¢36 |
|||
|
1200 |
1220 |
1405 |
1340 |
32-¢33 |
1455 |
1380 |
32-¢40 |
|||
|
1400 |
1420 |
1630 |
1560 |
36-¢36 |
1675 |
1590 |
36-¢42 |
|||
|
1500 |
1520 |
1730 |
1660 |
- |
- |
- |
||||
|
1600 |
1620 |
1830 |
1760 |
40-¢36 |
1915 |
1820 |
40-¢48 |
|||
|
1800 |
1820 |
2045 |
1970 |
44-¢40 |
2115 |
2020 |
44-¢48 |
|||
|
2000 |
2020 |
2265 |
2180 |
48-¢42 |
2325 |
2230 |
48-¢48 |
|||
安装简要说明:VSSJA-1型法兰式限位伸缩接头适用于一边与法兰连接,一边与管道焊接,单法兰限位伸缩接头在安装时调整产品两端与管道或法兰的安装长度,对角依次均匀拧紧压盖螺栓,再调整好限位螺母,这样就能让管道在伸缩量范围内可以自由伸缩,锁定伸缩量,确保管道的安全运行。